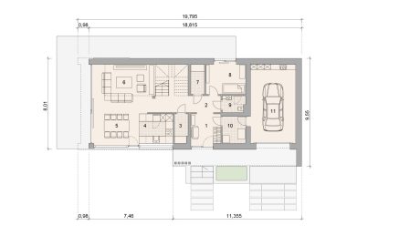
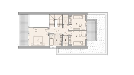
Komfortowy, jednorodzinny dom z poddaszem użytkowym. Nowoczesna, oparta na planie prostokąta bryła. Wielkoformatowe przeszklenia na elewacji ogrodowej. Minimalistyczna płaska dachówka częściowo schodząca na elewację. Jednostanowiskowy garaż poza bryłą budynku.

Produkty wienerberger zastosowane w projekcie 'Dom na przyszłość'
Najnowocześniejsze rozwiązania w Twoim domu
- rozwiązania ścienne - jednowarstwowe ściany zewnętrzne z pustaków Porotherm D 42,5 T Dryfix wypełnianych wełną mineralną stanowiącą zintegrowane ocieplenie
- akcesoria ścienne Porotherm - gotowe belki nadprożowe, stropy oraz kształtki ceramiczne, zapewniające idealnie wybudowane ściany
- rozwiązania dachowe - dach oraz część elewacji pokryte dachówką ceramiczną Koramic Orea 9, płaską, minimalistyczną i nowoczesną
- akcesoria dachowe Koramic - membrany, taśmy, spinki i inne elementy zapewniające szczelny i bezpieczny dach
- rozwiązania klinkierowe - niebanalne cegły elewacyjne Terca Long John o długim formacie, trwałe, nowoczesne i piękne